The Greenfield
The Bayside

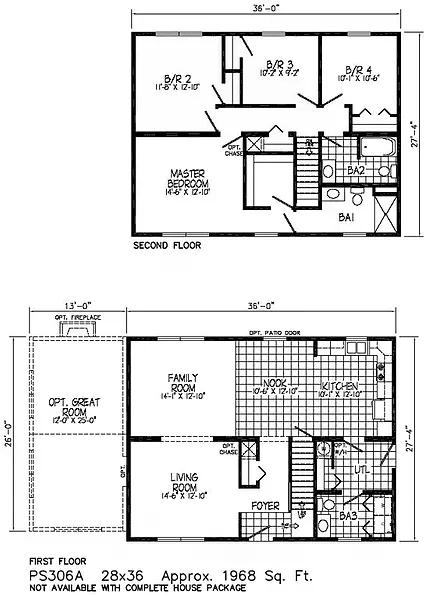
The Elisnor

Open eat-in kitchen & family room

1968 sq ft

3 Bedrooms

2.5 Bathrooms