The Ozark A
The Ozark C

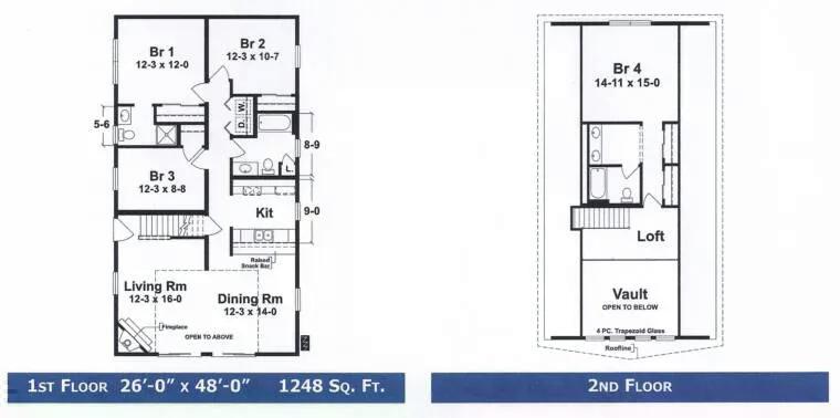
The Ozark B

Larger open living room/kitchen area with home office

1248 sq ft

3 Bedrooms

1.75 Bathrooms