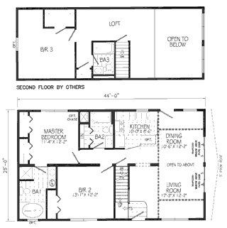
Spacious plan with large family room and living room
1144 sq ft
2 Bedrooms
2 Bathrooms
Return to Vacation Style Homes